Код товару: 09-18748
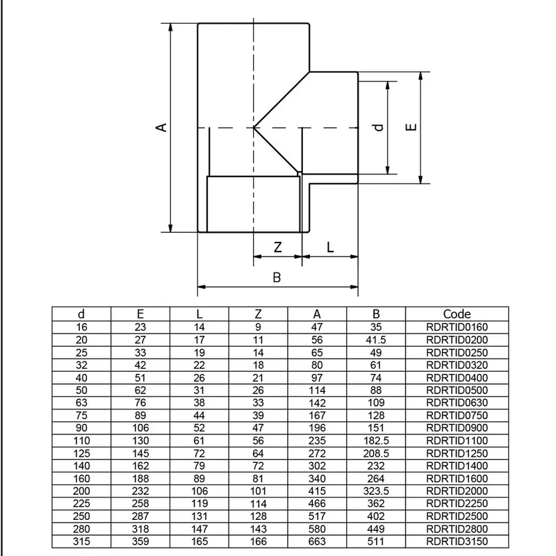
Трійник ПВХ Effast RDRTID0200 90°, d20 мм
38.50 ₴
В наявності

