Код товару: 09-18749
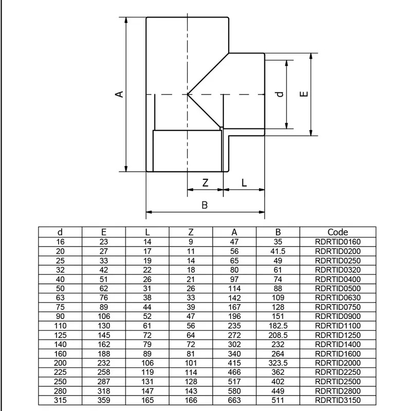
Трійник ПВХ Effast RDRTID0250 90°, d25 мм
48.50 ₴
В наявності

